10階部分・バルコニーが南に面し日当り・通風・眺望良好♪専有面積94.69㎡・間取り4LDK・室内丁寧に使用されてます♪
| 交 通 |
価 格 |
専有面積 |
築年月 |
間 取 |
阪急宝塚線 川西能勢口 駅
徒歩 分
/ バス分 |
950 万円 |
94.69 ㎡ |
平成6年2月 |
4LDK |
| 外観画像 |
間取画像 |
その他画像 |
 |
 |
|
| 物件名称 |
パークハウス猪名川壱番街B棟 |
| 所在地 |
兵庫県川辺郡猪名川町若葉2丁目50 |
| 間取(間取詳細) |
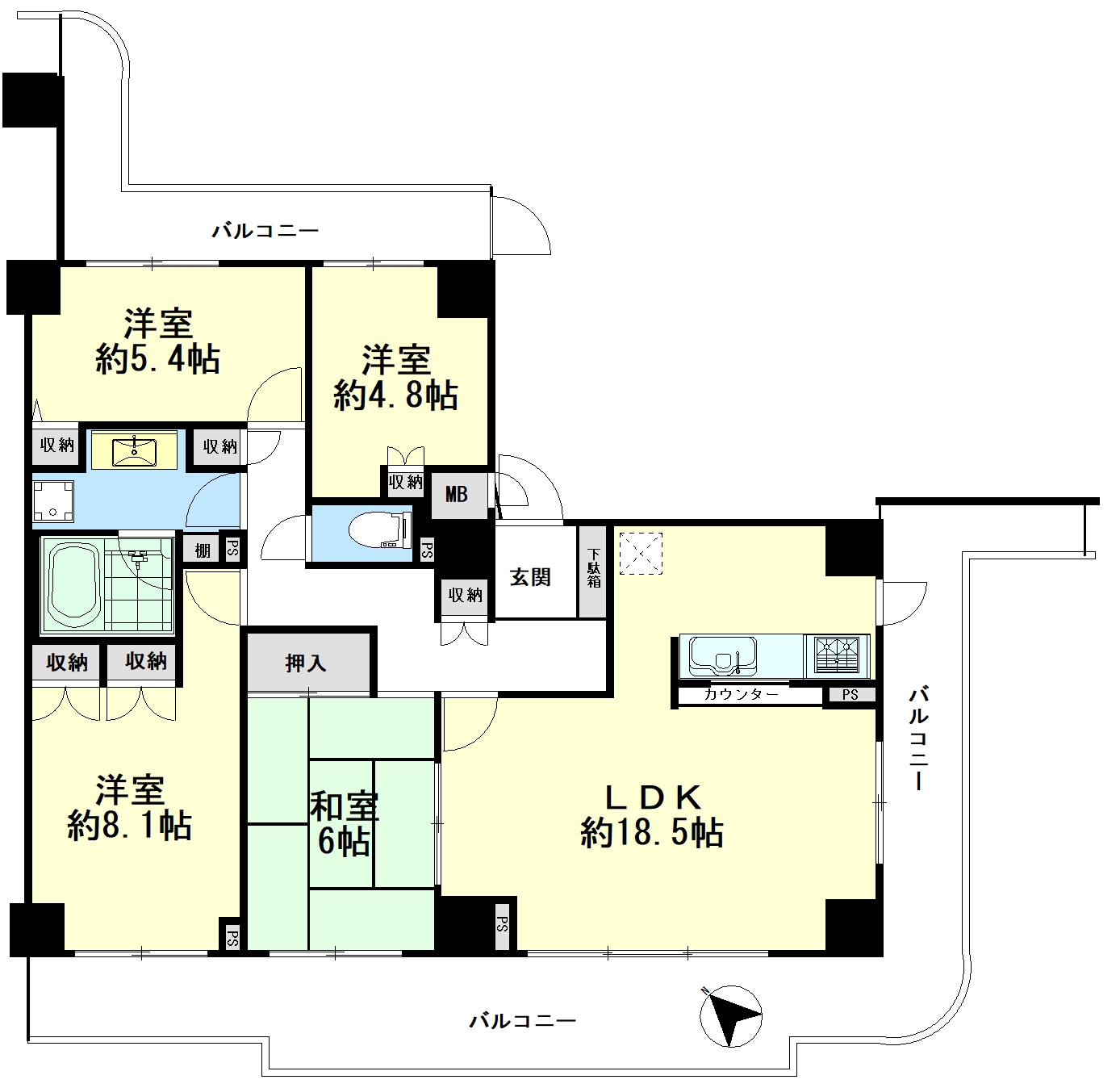
4LDK (LDK:18.5帖×1室 、洋室:8.1帖×1室 、洋室:5.4帖×1室 、洋室:4.8帖×1室 、和室:6帖×1室 ) |
| その他の交通 |
能勢電鉄 日生中央駅
バス13分 若葉2丁目下車 徒歩2分
|
| 建物構造 |
SRC造 |
駐車場(保証金) |
有り 3,500円
(9,000円)
|
| 所在階 / 階建 |
10階 / 14階建 |
総戸数 |
239 戸 |
| 管理費 / 修繕積立金 |
13,070 円 / 18,940 円 |
用途地域 / 国土法届出 |
第一種中高層住居専用地域 / 不 要 |
| バルコニー面積 |
33.8 ㎡ |
主要採光面 |
南 |
| 土地権利 |
所有権 |
現 況 / 引渡時期 |
空家 / 相談 |
| 施工会社 |
㈱竹中工務店 |
管理 / 管理会社 |
日勤 / 三菱地所㈱ |
| 取引形態 |
仲介 |
管理番号 |
|
| 物件登録日 |
2025年11月04日 |
次回更新日 |
2025年11月19日 |
※ 表示されている地図は周辺環境を示すものであり、実際の物件所在地とは異なる場合がございます。詳細は必ず店舗までお問い合わせください。
物件お問い合わせ