三井ホーム施工の注文住宅。車2台駐車可能。玄関を開けた瞬間、吹き抜けのある開放的な空間が広がります。
| 交 通 |
価 格 |
土地面積 |
建物延床面積 |
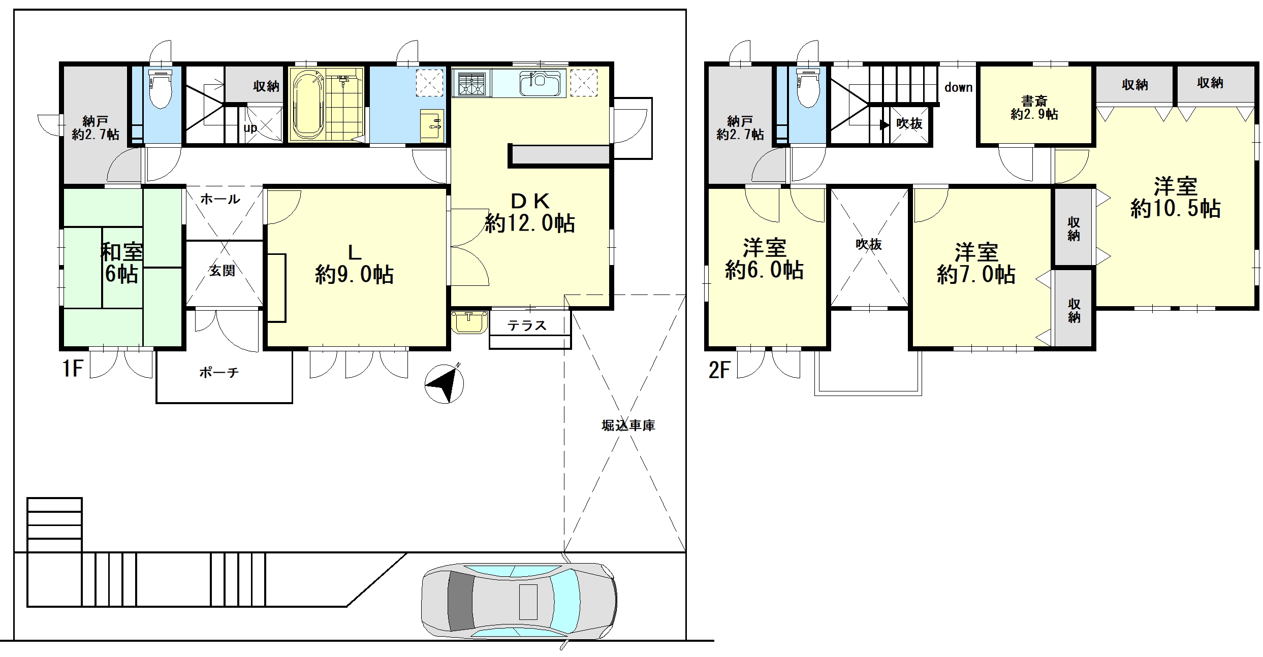
間 取 |
JR福知山線 西宮名塩 駅
徒歩 分
|
990万円 |
220.48 ㎡ (66.71坪) |
140.77 ㎡ |
4LDK |
| 外観画像 |
間取画像 |
その他画像 |
 |
 |
|
| 所在地 |
兵庫県西宮市東山台3丁目22-2 |
| 間取(間取詳細) |
4LDK (LDK:21帖×1室 、洋室:10.5帖×1室 、洋室:7帖×1室 、洋室:6帖×1室 、和室:6帖×1室 ) |
| 建物構造 |
木 造 |
築年月 |
平成12年7月 |
| 階 建 |
2階建 |
駐車場 |
有り |
| 接道状況 |
南側 幅員6.3m |
私道負担面積 |
|
| 建ぺい率 |
50% |
容積率 |
100% |
| 都市計画 |
市街化区域 |
用途地域 |
第一種低層住居専用地域 |
| 地目 |
宅 地 |
土地権利 |
借地権 |
| 国土法届出 |
不 要 |
現況 |
空家 |
| 主要採光面 |
南 |
引渡時期 |
相談 |
| 取引形態 |
仲介 |
管理番号 |
|
| 物件登録日 |
2026年01月27日 |
次回更新日 |
2026年02月22日 |
※ 表示されている地図は周辺環境を示すものであり、実際の物件所在地とは異なる場合がございます。詳細は必ず店舗までお問い合わせください。
物件お問い合わせ